Princip rada više-tačaka pražnjenja Z- lifta

Dizalicu tipa Z- pokreće motor i reduktor. Vučni dijelovi su dva lanca za prijenos i transport. Obje strane rezervoara su okačene na dva lančana klina; Istovar; Lift tipa Z- se sastoji od pogonskog sistema, sistema prenosa, delova kućišta (gornje kućište, standardno srednje kućište, šine za vođicu standardno srednje kućište, inspekcijsko srednje kućište, donje kućište), zateznog uređaja, sistema za napajanje, sistema za istovar, sistema za podmazivanje, električnog sistema upravljanja.
Koja je razlika izmeđuLift sa više-tačaka pražnjenja Z-i drugu transportnu opremu?
Univerzalni transporteri uključuju trakaste transportere, pužne transportere, itd., koji su obično horizontalni. Z-kapasti elevator je široko rasprostranjena linearna transportna oprema. Nasuprot tome, elevator tipa Z- može transportovati materijale pravolinijski, skratiti transportnu liniju visine dizanja, učiniti sistem kompaktnim, a elevator tipa Z- ima dobro zaptivanje. Rad unutar kućišta ima bolju funkciju brtvljenja, što može smanjiti zagađenje okoliša.
Karakteristike
1. Vertikalno uvlačenje ne oštećuje materijale
2. Sastavljeni lančanik se lako zamjenjuje, štedi rastavljanje i smanjuje troškove održavanja;
3. Usvojen je uređaj za zatezanje poluge teških čekića, koji može ostvariti automatsko zatezanje. Nije potrebno podešavanje nakon jedne instalacije, a može se održavati konstantna napetost kako bi se osigurao normalan rad stroja.
Izbjegavajte klizanje ili klizanje;
4. Ima visoku zateznu čvrstoću i otpornost, te ima dug vijek trajanja.
Technical Parameter
|
Model |
HYZD-2L |
HYZD-3L |
HYZD-5L |
HYZD-7L |
HYZD-10L |
HYZD-20L |
|
Kapacitet/kanta |
2.0L |
3.0L |
5.0L |
7.0L |
10.0L |
20.0L |
|
Maksimalni izlaz |
6m³/h |
8m³/h |
12m³/h |
15m³/h |
17m³/h |
30m³/h |
|
Brzina |
9-11m/min |
|||||
|
Visina podizanja |
Prilagođeno |
|||||
|
Snaga |
0,55-11kw |
|||||
Napomena:
1. Zapremina kašike u tabeli je izračunata zapremina kašike, a zapremina transporta se izračunava prema faktoru punjenja od 0,6.
2. Spremnik: ABS spremnik za hranu/lijek od nehrđajućeg čelika/lijevka od ugljičnog čelika
Struktura
Dizalica Z serije sastoji se od pokretnih dijelova, pogonskog uređaja (uređaj za sporu rotaciju), gornjeg uređaja, srednjeg kućišta i donjeg uređaja.
Pokretni dijelovi----sastoje se od spremnika i lanca s rukavcima.
Pogonski uređaj - usvaja motor Y serije, reduktor i reduktor lančanog pogona, itd. (korisnički-definiran elektronski prekidač).
Sporo{0}}uređaj za rad-koji ima motor sa reduktorom, povezan sa reduktorom i reduktorom lančanog pogona preko kvačila, koji se obično koristi tokom održavanja opreme, ovaj uređaj je uređaj koji-odabira korisnik.
Uređaj za pogon lifta sa više-tačaka pražnjenja Z- je podijeljen u dvije vrste: lijevo-montirano i desno-montirano:
Instalacija s lijeve-strane: Okrenuti prema ulazu za napajanje, snaga pogonske jedinice je na lijevoj strani kućišta.
Desno-montiran: Okrenuti prema ulazu za napajanje, snaga pogonske jedinice je na desnoj strani kućišta.
Gornji uređaj - opremljen gornjim lančanikom, glavnom osovinom i ispusnim priključkom.
Srednji dio - Srednji dio uključuje: prvi dio srednji dio, standardni srednji dio, srednji dio sa vratima za pregled i ne-standardni srednji dio.
Donji uređaj - instaliran sa donjim lančanikom, zadnjim vratilom i uređajem za zatezanje itd. (prekidač nivoa materijala, prekidač brzine je definiran korisnikom-).
Strukturne karakteristike
Hopper:Kako bismo zadovoljili potrebe kupaca, postoje različiti materijali kao što su najlon, ABS, PP, nerđajući čelik 304, nerđajući čelik 316L, nerđajući čelik 310, ugljenični čelik itd.
lanac:Koristeći lanac domaćeg poznatog brenda, naš mehanički transportni lanac s rotirajućim žlicama koristi samopodmazujući lanac transportera s velikim nagibom-. Zbog toga se smanjuje gubitak trenja lanca u upotrebi, produžuje se vijek trajanja lanca, a troškovi održavanja i zamjene se smanjuju.
Šasija:Cijela mašina može biti izrađena od ugljičnog čelika, elektrostatičkog raspršivanja ili od nehrđajućeg čelika
Vrsta transporta:Rotacioni transporter sa kašikom transportuje materijale u zatvorenom telu, a transportuje materijale kroz rezervoar okačen na lanac. Modularni dizajn može realizirati širok raspon konfiguracija i može se kombinirati horizontalno, vertikalno i horizontalno. Z-tip, C-tip, E-tip, L-tip, R-tip također može biti više{7}}dovod, više-istovar, cijela mašina je potpuno zatvorena, nema zagađenja, nema curenja, uredna i čista, a pravljenje fleksibilnog sastava i malog prostora, može se koristiti u unutrašnjosti transportne mašine koje se lako instaliraju i modifikuju.
Vrste i materijali za pražnjenje
Ovaj uređaj se može koristiti u raznim okruženjima koja zahtijevaju nježno rukovanje. Z-tip hranjenja, C-tip hranjenja, Z-C mješovito hranjenje i više-hranjenje, više-istovar i druge prilike. Trenutno se uglavnom koristi za napajanje mašina za vaganje i pakovanje, za punjenje i ponovni{7}}izbor mašina za sortiranje u boji, trodimenzionalno cirkulacijsko utovar i istovar automatskih proizvodnih linija i više{9}}napajanje automatskih sistema za vaganje i doziranje.

Kada lift tipa Z- ima više ispusnih priključaka, kako lift tipa Z- ostvaruje pražnjenje?
Na osnovu potreba kupaca, kupcima nudimo tri načina istovara koje kupci mogu izabrati:
Ručni istovar, pneumatski istovar, električni istovar.
Obaveštenje za kupca
Ako želite da dobijete informacije, video i cijenu proizvoda Z-kapastog lifta, molimo da nam dostavite sljedeće informacije: informacije o veličini; sirovine za preradu (materijali): naziv □ specifična težina □ sadržaj vlage □ temperatura □; uslovi lokacije; posebne zahtjeve
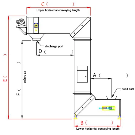
Molimo navedite dužinu A, D i F na slici ispod, ili dužinu B, C i E

Koje su industrije ili materijaliLift tipa Z- sa više tačaka pražnjenja pogodan za?
Z-dizalo je pogodno za horizontalni-vertikalni-horizontalni transport rasutih materijala, uglavnom uključujući transport ne-viskoznih materijala kao što su granule i prah. Širok raspon industrija primjene, uglavnom uključuje: industriju vatrostalnih materijala, industriju plastike, industriju aktivnog uglja, industriju hemijske metalurgije, industriju građevinskih materijala i zaštite okoliša, industriju gnojiva, nemetalno rudarstvo, itd.
Materijal za podizanje
Prehrambena industrija: keksi, gumene gume, marshmallows, male lepinje na pari, palačinke, pileća esencija, čips, pirinčani rezanci, knedle, kikiriki, sjemenke dinje, pistaći, pirinač itd.
Hemijska industrija: plastične granule, aktivni ugalj, konzervansi, aditivi, đubriva itd.
Farmaceutska industrija: kapsule, tablete, pilule itd.
Industrija hardvera: vijci, matice, metalni okovi, itd.

Uobičajeni problemi
1. Traka rezervoara klizi.
Podesite ručni točak fiksne linije i zategnite remen rezervoara.
2. Ležaj je prašnjav i slabo podmazan.
Očistite ležajeve i dodajte novu mast.
3. Remen prijenosa klizi ili pada, ili prijenosni uređaj pokvari.
Zategnite pogonski remen kako biste otklonili kvar uređaja za prijenos.
4. Zavrtnji rezervoara je labav ili otpada, a rezervoar se pomera ili otpada. Zaustavite se radi pregleda, zategnite zavrtnje rezervoara i podesite položaj rezervoara.
Mjere predostrožnosti
1. Granularnim kafastim elevatorom tipa Z- upravlja posebna osoba, a prekidač za napajanje se redovno provjerava.
2. Kako bi se poboljšala sigurnost upotrebe, dizalica treba ugraditi graničnik dizalice i graničnik kretanja. Pustite da se remenica podiže do udaljenosti od kotura.
3. 300mm može automatski zaustaviti dizalicu, a može i izvršiti probno podizanje.
4. Dizalica treba da ima oznaku opterećenja, a težina ne smije biti preopterećena prilikom podizanja i spuštanja.
5. Nakon što dizalica počne slati struju, provjerite radne uvjete graničnika dizalice, graničnika hoda i blokade kako biste vidjeli da li su normalni.
6. Pre podizanja ili sletanja, auto se može voziti tek nakon što zazvoni zvono.
7. Industrijski transporter za hranjenje peleta ne smije nositi ljude gore-dolje.
8. Po završetku radova, viseća ploča lifta tipa Z- sa višestrukim pražnjenjem čestica treba pasti na tlo, zatim prekinuti napajanje, te zatvoriti gornja i donja vrata zaštitne ograde.
9. Uvijek održavajte higijensko okruženje dizala tipa Z- sa više tačaka pražnjenja čestica.
Materijal za podmazivanje, ciklus i metoda za elevator
|
Naziv dijela za podmazivanje |
Materijal za podmazivanje |
Ciklus podmazivanja |
Metoda podmazivanja |
|
Ležaj |
Vodootporna mast |
200 sati |
sa lubrikatorom |
|
Backstop |
Vodootporna mast |
50 sati |
sa lubrikatorom |
|
Tension Bolt |
Vodootporna mast |
500 sati |
razmazati |
|
Reduktor brzine |
Prema specifikaciji opremljenog reduktora |
6 mjeseci |
pour |
|
Električni motor |
Vodootporna mast |
6 mjeseci |
pour |
Naše garancije i usluge
Pre{0}}Usluga prije prodaje:
- Vodite kupce da odaberu odgovarajući model opreme.
- Pošaljite inženjersko i tehničko osoblje na proizvodnu lokaciju na vrijeme kako bi planirali lokaciju za kupce, dizajnirali razumne procese i rješenja.
- Možemo dizajnirati i proizvoditi proizvode prema posebnim potrebama kupaca kako bismo zadovoljili različite potrebe investitora
Usluga na rasprodaji:
- Stroga kontrola proizvoda prije izlaska iz tvornice
- Isporuka prema ugovoru
Nakon{0}}usluga nakon prodaje:
- Glavni garantni rok na opremu koju prodaje naša kompanija je godinu dana (osim kvara ili oštećenja uzrokovanih ljudskim faktorima, faktorima goriva ili neodoljivim prirodnim pojavama, a ranjivi dijelovi nisu pokriveni garancijom: brizgaljke za gorivo, glave pumpe, fotoosjetljive oči itd.).
- Ako je kvar opreme uzrokovan ljudskim faktorima, trošak će biti naplaćen prema tvorničkoj cijeni.
- Nakon što primite obavještenje o garanciji, odgovorite u roku od 2 sata. 24 sati na tehničke upute za rješavanje problema.
O kompaniji Odifei

Zhengzhou Odifei Machinery Equipment Co., Ltd. se već 17 godina fokusira na transportnu opremu. Njegova glavna djelatnost je: spiralni vibracioni vertikalni elevator, dodavač lamela, transporter sa lančanim pločama, transporter sa letvicama, strugač transporter, transporter sa velikim uglom, pužni transporter, transporter sa lančanim kašikama, TD trakasti kašikasti elevator, TH prstenasta lančana kašika, NESE kašika elevator i drugi kompletni asortiman korpastih elevatora. TD75 trakasti transporter (ili trakasti transporter), pokretni transporter, trakasti transporter sa rebrima velikog nagiba; pužni transporter, pužni transporter bez osovine; laki, srednji i teški lančani transporter sa pločama; mašina za transporter sa lančanom kašikom, SCD transporter klinkera; horizontalni dvoosovinski mikser; lagani, srednji i teški ulagač ploča; GZG motor vibracija; trommel ekran, trommel ekran bez osovine;
2010. godine, tim za istraživanje i razvoj naše kompanije ušao je u industriju recikliranja resursa i sukcesivno je razvio ljuskaste transportere za tretman domaćeg otpada, sita za prosijavanje i sortiranje kućnog otpada bez osovine, dodavače lamela za građevinski otpad i transportere za otpatke u električnim pećima, koji ne samo da stvaraju. industrijski lanac.
Zhengzhou Odifei Machinery Equipment Co., Ltd. kontinuirano provodi tehnološke inovacije u duhu izvrsnosti, te je razvio nekoliko praktičnih novih proizvoda. Proizvod je naprednog dizajna, finog u proizvodnji, pouzdanog u performansama, međunarodnog je naprednog nivoa, dobro se prodaje u zemlji i inostranstvu i ima za cilj da bude lider u industriji!
FAQ
P: Korpasti elevatori se sastoje od nekih komponenti
O: Hopper: fiksiran na traku (ili vučni lanac), postoje tri vrste
Duboka kanta - pogodna za rastresite materijale;
Plitka kanta - materijali visokog viskoziteta;
Trouglasta kanta - teški i grudasti materijali
Oklop: Ugrađeni{0}}u prijenos i graničnik.
Tijelo: Tanka čelična ploča je zavarena u četvrtastu školjku, a instalacija je odstupljena.
Dole: Ugradite uređaj za zatezanje.
P: Postoji nekoliko tipova korpastih elevatora
O: 1. Prema obliku rasporeda: može se podijeliti na vertikalni i nagnuti tip
2. Prema različitim metodama pražnjenja: može se podijeliti na centrifugalno, gravitacijsko i hibridno.
3. Prema različitim metodama punjenja: može se podijeliti na tip iskopa i tip ubrizgavanja.
4. Prema strukturi lijevka: može se podijeliti na plitku kantu, duboku kantu i trokutastu kantu.
5. Prema različitim vučnim komponentama: može se podijeliti na traku i čelični lanac.
P: Koji je princip rada korpastog elevatora
O: Princip rada transportnog elevatora sa kašikom je sledeći: rezervoar zahvata materijal iz skladišta ispod, podiže ga na vrh transportnom trakom ili lancem, okreće se prema dole nakon što zaobiđe gornji točak, a elevator sa kašikom ispušta materijal u prihvaćeno u otvoru. Pogonski remen kaišnog-kapastog elevatora uglavnom ima gumeni remen, koji je ugrađen na donji ili gornji pogonski bubanj i gornji i donji bubanj za preusmjeravanje. Lopato elevator sa lančanim pogonom- općenito je opremljen sa dva paralelna prijenosna lanca, sa parom prijenosnih lančanika na vrhu ili dnu, i parom lančanika za preusmjeravanje na dnu ili na vrhu. Elevatori sa kašikama su uglavnom opremljeni kućištima za sprečavanje letenja prašine u elevatorima.
P: Koje su prednosti i nedostaci elevatora?
O: Prednosti:
1. Struktura je jednostavna, bočna veličina je mala, a površina poda je mala.
2. Visina podizanja je velika, kapacitet transporta je dobar, tijelo je potpuno zatvoreno, a zagađenje okoliša je malo.
3. Niska potrošnja energije.
Nedostatak:
1. Lako se blokira kada je preopterećen, a spremnik se lako nosi.
2. Pogodan je samo za transport praškastih, granuliranih i malih i srednjih- rasutih tereta, kao što su žitarice, ugalj, pijesak itd.
3. Roba se ne može transportovati u horizontalnom pravcu.
P: Da li ste fabrika ili trgovačka kompanija? Prilikom izgradnje aLift sa više-tačaka pražnjenja Z-, Za koje su druge materijale prikladni elevatori?
O: Mi smo fabrika, osnovana 2007. godine, specijalizovana za proizvodnju vertikalnih vibracionih dizalica, vertikalnih vibracionih elevatora, kašikastih elevatora, trakastih transportera, transportera vaga, pužnih transportera, itd. Korišasto elevator se može koristiti u hemijskoj industriji, keramičkoj industriji, prehrambenoj industriji, metalurgiji, itd.
P: Šta je sa rezervnim dijelovima?
O: Uvijek obezbjeđujemo rezervne dijelove po cijeni koštanja i dajemo vam listu rezervnih dijelova kada kupite mašinu.
P: Hoćete li testirati dizalo tipa Z- sa više tačaka pražnjenja prije isporuke?
O: Da, testirat ćemo svaku mašinu i proizvodnu liniju prije isporuke i poslati vam radni video. Također možete provjeriti kod nas prije isporuke.

Proces nabavke

Z-Elevator sa kašikom (C-Elevator tipa) Korisnici mogu odabrati konfiguraciju:
Šasija: šasija od nerđajućeg čelika/šasija za prskanje od ugljeničnog čelika
Spremnik: spremnik od ABS-a za hranu/lijevka od nehrđajućeg čelika/lijevka od ugljičnog čelika
Lanac: lanac od legiranog čelika/lanac od nerđajućeg čelika
Lančanik: lančanik od legiranog čelika/lančanik od nehrđajućeg čelika
Pogon: obični motor/motor otporan na eksploziju-motor/motor promjenjive frekvencije
Kontrola: ručna/automatska (može se prilagoditi prema zahtjevima kupca)
Z-kapasti elevator je nova vrsta opreme za transport materijala koja je uspješno razvijena integracijom napredne tehnologije u industriji. Od kada je dizalica tipa Z- stavljena na tržište, može se brzo prilagoditi potrebama proizvodnje, a mnogi setovi proizvoda uspješno se koriste u mašinama za zaštitu okoliša, metalurgiji, hemijskoj industriji, industriji gnojiva i drugim industrijama.
Kako dobiti ponudu?
Pošto je dizalica tipa Z- mehanički proizvod, ima određeni stepen profesionalizma, pa je potrebno citirati prije ponude.
Za komunikaciju sa kupcima slijedeće informacije:
1. Koji materijal kupac prenosi?
2. Kolika je nasipna specifična težina materijala?
3. Koja je gornja i donja horizontalna udaljenost? Koja je visina transporta?
4. Koliki je potreban obim isporuke po satu?
5. Ostalo, kao što su: sadržaj vlage u materijalu, materijal opreme itd.
Molimo navedite dužinu A, D i F na slici ispod, ili dužinu B, C i E

Ako ste zainteresovani za više-tačkasti ispust Z- lifta, slobodno nas kontaktirajte za 24 sata!
Dobrodošli u posjetu našoj fabrici!!!
Popularni tagovi: više-tačaka pražnjenja z-tipa lifta, Kina više-tačaka pražnjenja z-proizvođači liftova, dobavljači, fabrika









